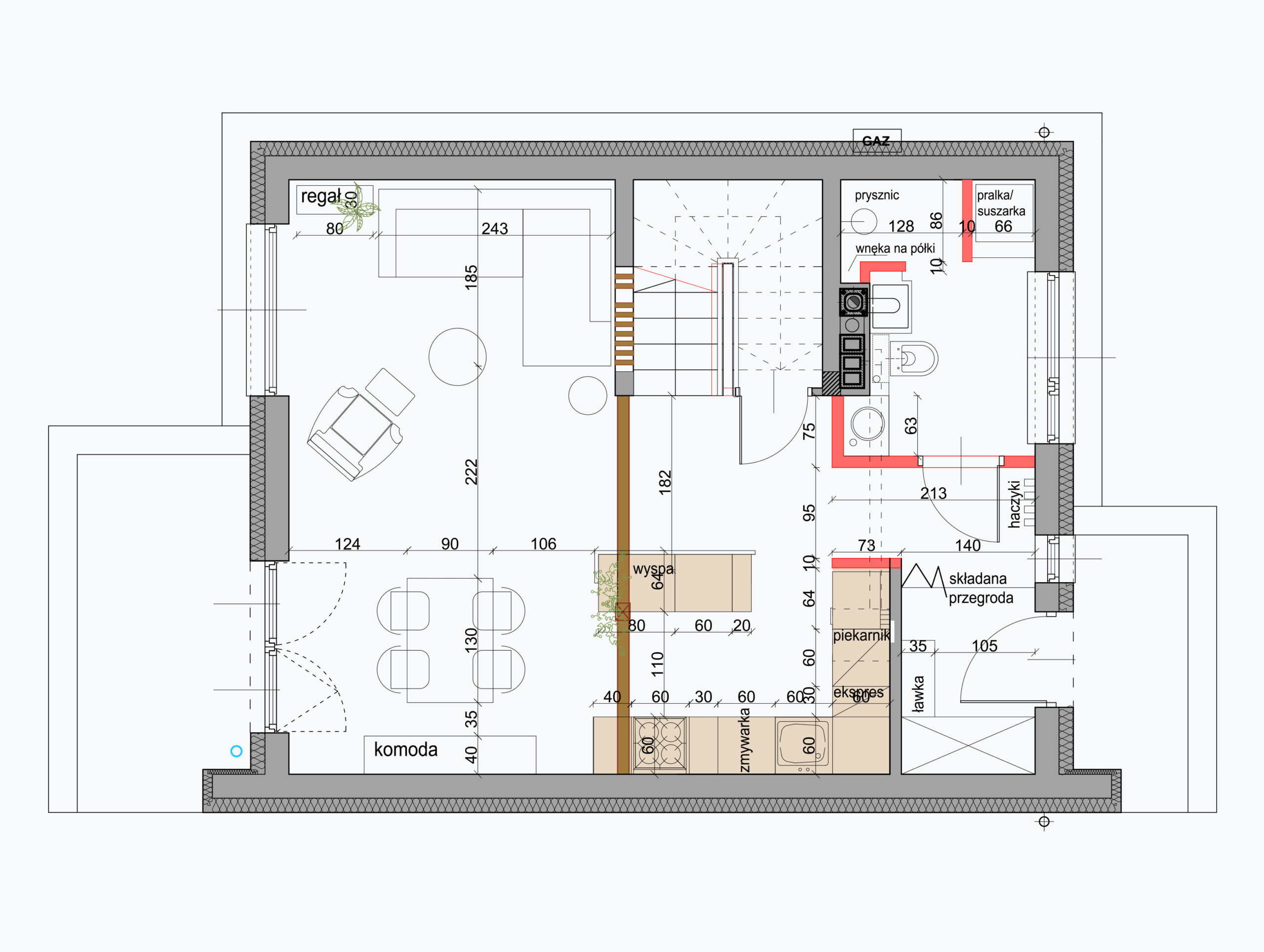
Projekt zaczęliśmy od wytycznej inwestorów dotyczącej drewnianych lameli koło schodów. Oczywiście marzenie spełnione, ale drewno pojawia się także w kilku innych miejscach tworząc przestrzeń naturalną i przyjazną
| Lokalizacja: | Kraków |
| Inwestor: | prywatny |
| Rok wykonania: | 2020 |
| Współpraca: | Lidia Sarad |
| Wizualizacje: | Sylwia Sławek |